A Thoughtfully Designed Machiya with Modern Comforts close to Kyoto Station, The Lounge at West Kujo

Available
Enquire Within
Commercial
Investment
¥Inquire on price
(Estimated around $Inquire on price USD)

22-9 Nishikujoin-machi, Minami-ku, Kyoto


Details

Property area:22.14sq m   |   Land area size: 41.78sq m   |   Bedrooms:1   |   Bathrooms:1   |   Garages:0   |   Year Constructed: N/A   |   Land Type:Freehold

Access

  4 min walk to JR Shinkansen Kyoto station

Overview

by Shimaya

Prime Location – Ultimate Connectivity & Cultural Charm

Located just a 5-minute walk from Kyoto Station, The Lounge at West Kujo provides effortless access to:
Shinkansen & Express Trains – Direct links to Tokyo, Osaka, and Kansai International Airport
Kyoto Subway & Bus Networks – The Karasuma Line (north-south Kyoto) and connections to the Tozai Line (east-west Kyoto) ensure seamless city-wide travel
Shopping & Dining – Malls, supermarkets, and a variety of Michelin-starred and casual restaurants
Cultural LandmarksToji Temple (UNESCO World Heritage Site) is within walking distance, hosting a renowned monthly open-air market

Despite being near Kyoto’s main transport and commercial hub, The Lounge is nestled in a peaceful lane, offering a rare sense of seclusion in the city’s vibrant core.

A Thoughtfully Designed Machiya with Modern Comforts

The Lounge at West Kujo blends traditional Kyoto aesthetics with contemporary luxury. Designed with clean lines, muted tones, and natural materials, the interiors create an atmosphere of tranquility and understated elegance.

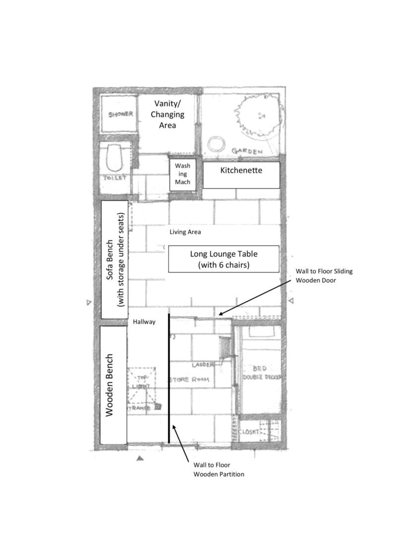
Flexible Living Space – A built-in bunk bed can be discreetly hidden behind a wooden sliding door, keeping the space open and uncluttered.
Handcrafted Artistry – A woodblock print by Kira Karacho 1624, a master of karakami prints for over four centuries, serves as a statement piece of historical craftsmanship.
A Private Garden Retreat – A tiny Japanese garden, visible from both the shower area and kitchenette, offers a peaceful natural escape within the home.

Fully Equipped with Luxury Amenities

Heated Flooring – Stay cozy during Kyoto’s cooler months
High-Speed Wi-Fi – Reliable connectivity for work or leisure
Fully Equipped Kitchenette – Perfect for home cooking or long-term stays
Washer-Dryer – Ideal for independent living and extended stays
Serviced Convenience – Weekly housekeeping and linen changes ensure a hassle-free, hotel-like experience

A Smart Investment in Kyoto’s Booming Hospitality Market

  • Prime Location – High demand for Kyoto Station-area accommodations from domestic and international travelers
  • Boutique Hotel or Private Stay – Ready for short-term rental or personal use
  • Turnkey Investment – Fully furnished and operational as a serviced accommodation

Note: Company included in purchase.

 


Features

Air Conditioning
Air Conditioning
Furnished
Furnished
Washing Machine and Dryer
Washing Machine and Dryer
WIFI

Floor Plan

Nishikujo Lounge
Floorplan

CONTACT AN AGENT

    ARRANGE A VIEWING